Elaheh Sabeti


This website is the personal website of Dr. Elaheh Sabeti. With more than 24 years of architectural work experience, together with more than 19 years of studying, working, and researching acoustics, especially architectural acoustics, she knows the common language of these two territories, which is used in her designs. Being in the middle area of two disciplines lets her have mutual interaction with both architects and acousticians.





Curriculum Vitae


Education:

2017-2022 . PhD in Architecture. Shahid Beheshti University. Tehran

Dissrtation Title: Auditory Experience of Place

Supervisors: Dr. Hadi Nadimi, Dr. Zohreh Tafazzoli

2003-2006. Voluntary Attending at Acoustical Courses. Department of Music, Tehran University. Tehran

1996-2005. MA in Architecture (continuous with BA in Architecture). Shahid Beheshti University. Tehran

Thesis Title: Performance Space for Iranian Music: Research to Establish Design Criteria.

Supervisors: Dr. Khausrow Maulana, Dr. Hadi Nadimi. Advisor: Maestro Majid Kiani.

1992-1996. Diploma in Mathematical Sciences. Farzanegan High School. Tehran


Acoustical Professional Experiences:

2025. Architectural and Acoustical design of ‘Conference Hall and Meeting Room’ of Yazd Construction Engineering Organization

2025. Architectural and Acoustical design of ‘Theater Black Box’ of Arak Cultural Center

2023-2024. Architectural and Acoustical design of ‘Conference Hall of Yazd University’

2023. Noise Reduction and Room Acoustics design of ‘Audio and Video Recording Studio of Ministry of Science’

2020-2021. Architectural and Acoustical design of ‘Music Hall’ and ‘Theatre hall’ of Arak cultural center

2016. Noise Reduction of Mechanical equipment of Yasaman Residential Building

2014. Professional Secretary of National Building Regulations in Iran (Committee 18 : Acoustics)

2013-2016. Board of Directors in Navock Cultural Institute (Acoustical institute)

2010-2016. Acoustical design of some auditoriums (Rasht concert hall, Esfahan auditoriums, etc.), and some noise reduction projects Under the supervision of Dr. Maulana.

2009-2010. Research assistant at The Acoustical Department of the Building and Housing Research Center (BHRC) of Iran

2005-2016. Participation in the following projects at Maulana Acoustical Lab. (A private Lab. in Tehran) :

- In charge of “Catalogue of Historical Musical Pictures”

- Research and reconstruction of numbers of ancient Iranian musical instruments: Karnah, Barbat, etc.

- Identifying, cataloguing and collecting old and classical acoustical books, especially Iranian acoustical manuscripts

- Identifying, cataloguing and collecting Iranian old records (like phonographs)

- Developing a short standard text for Persian language

- Designing PCB for audio-electronic circuits

- Learning elementary knowledge about sound recording, electro-acoustic equipment, and Audio Electronics


Architectural Professional Experiences:

2001-present. Architectural designer and technologist: Designing and supervising responsibilities with two architectural consultant firms, concerned with: residential, commercial, cultural, official and sports centers like ‘Performance Art Garden’ of Abbas-Abad Complex and ‘Payam’ mosque.


Musical Expriences:

1994-2007. Playing Santour (a traditional Iranian musical instrument) and Studying Radiff (formal model of Iranian traditional music) under the guidance and supervision of maestro Majid Kiani.


Publications:

2025. Sabeti, E., Tafazzoli, Z. (2025). Experiencing Architecture through Hearing: Phenomenological Incorporation of Auditory and Architectural Experience. Soffeh, 35(2), 27-42. doi: 10.48308/sofeh.2023.224102.1095

2023. Sabeti, E., Tafazzoli, Z. Architectural Experience Through Hearing. Presenting paper at the conference, Architecture 101: Questioning Fundamentals, Newcastle University. Nov 11, 2023.

2022. Sabeti, E., Tafazzoli, Z. (2022). An Analysis of Theoretical Foundations in Sound and Place Studies: From Architectural Acoustics to Auditory Place. The Monthly Scientific Journal of Bagh-e Nazar, 19(106), 51-64. doi: 10.22034/bagh.2021.283108.4867

2018. Cooperating for preparing construction details used in the book: Hedayati, M., Raissian, A., Heramvand, N. (2018). Investigation on Acoustical Behaviour of New and Traditional Partitions in Buildings. Tehran: BHRC Publication. Research Report No. R-802.

2017. Research fellow in the project: Establishing Dwelling Model in Iranian-Islamic Approach. Consultant Firm: Diargah-e-Shahr. Employer: Deputy of Urban Planning and Architecture, Tehran Municipality.

2015. Cooperating for cataloguing miniatures of the book: Tehrani, F. by Ali Qoli Aqa Bathhouse Museum. (2015). Persian Paintings of Garmaba (Bathhouses). Isfahan: Cultural and Recreational Organization of Isfahan Municipality.

2006. Maulana, K., Sabeti, E. (2006). Music in Safavid Isfahan: Festive or Epic? Presented at The International Congress of Esfahan School, Iran Academy of Arts.

2003. Sabeti, E. (2003). In Search of Hammam (Bathhouse) Architecture in Iranian Miniature Paintings. The Monthly Journal of Book of Month: Art, (63-64), 132-139.

2002. Sabeti, E. (2002). Musical Performance Space in Iranian Miniature Paintings. Soffeh, 12(34), 132-145.


Awards:

2011. First place (with two colleagues) in Facade Design Competition for designing Payam Mosque. Conductor: Architecture and Construction Magazine.

2001. First place for playing Santour in: Women Musical Festival in Iran.

2000, 2005. First place for performing Radiff in: Students Musical Festivals in Iran.

1999. Second place for performing Radiff in: Students Musical Festivals in Iran.





Architectural Acoustic Design Projects


● Conference Hall and Meeting Room of Yazd Construction Engineering Organization. 2025

Employer: Construction Engineering Organization of Yazd

The conference hall and meeting room are located in the main building, whose structure and main walls have already been constructed. The walls are gypsum dry-walls which have been upgraded and used as soundproof walls as well as interior materials in some places.


Conference Hall, View to the auditorium

Meeting Room, View to the main wall

The main issue of the architectural acoustic design of the conference hall was the narrow aspect ratio of the space, which might cause unwanted modes. The problem has been solved by using diagonal reflector/absorber walls to avoid standing waves and spread the sound energy uniformly in the space.

The diagonal walls and wooden absorbers have been used to provide an optimum reverberation time curve and sound dispersion in the conference hall and meeting room.


Conference Hall, Plan

Reverberation Time curve of the Auditorium

● Conference Hall of Yazd University. 2023-2024

Employer: The University of Yazd

The conference hall, which has around 1000 seats, had been already designed and the structure and main walls constructed. But, the acoustical properties of the hall had some problems. The main issue of reviewing the architectural acoustic design has been obtaining optimum acoustical properties with minimum changes. First, the noise reduction of walls and HVAC system revised and some of construction details added. Then, the hall design revised and modeled based on room acoustics principals to reach the optimum value of parameters for a multitask hall.


Conference Hall of Yazd University

Plan of Conference Hall

● Audio and Video Recording Studio of Ministry of Science. 2023

Employer: The Ministry of Science, Research and Technology

The recording studio was previously a large room inside the office building. As the client requested to remain a window with outside view, and a mechanical room is at the upper storey, the main challenges were airborne noise reduction of the window and exterior walls and impact noise reduction of the mechanical room.

To solve the problems, a second structure for the studio has been constructed, which has elastic connections to the main structure to reduce the vibration. Using second insulated walls and another window on second structure reduced the airborne noise.

The finish of walls is perforated plywood with absorbers with which the reverberation time has been calculated to be around 0.4s.


Video Studio and its Window

Video Studio

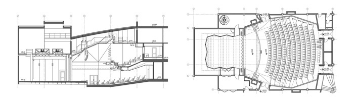
● Music Hall of Arak Cultural Center. 2020-2021

Employer: The Ministry of Culture and Islamic Guidance of the Islamic Republic of Iran

This Music hall is designed for a live performance of Iranian music. The main storey and the balcony, the constructed structure of which was available, include 310 seats. Because of the properties of Iranian music, the reverberation time is about 1s in a linear form. For holding solo or group musical performance, the volume and reverberation time can be changed by a moveable light wall on stage.


Arak Music Hall, view from the stage

Arak Music Hall, view from the balcony to the stage

Reverberation Time vs Frequency in Arak Music Hall

Arak Music Hall, Plan (right) and Section (left)

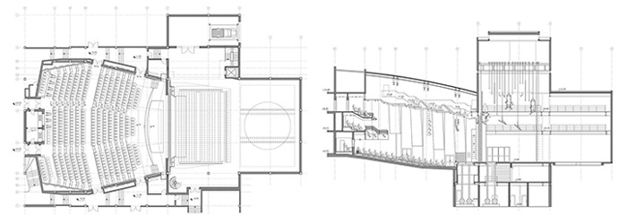
● Theater Hall of Arak Cultural Center. 2020-2021

Employer: The Ministry of Culture and Islamic Guidance of the Islamic Republic of Iran

The big volume of theater hall, the constructed structure of which was available, was a limitation for the live acoustical design of speech. Therefore, this hall has been designed to form a multi-purpose hall for theater and large-scale musical performances by using electroacoustic equipment. The main storey and two balconies include 625 seats. The shapes and materials have been designed to absorb a wide range of frequencies and avoid long reverberation time in low frequencies, to have more clarity in speech transmission.


Arak Theater Hall, view from the balcony to the stage

Arak Theater Hall, view from the stage

Arak Theater Hall, view of auditorium

Reverberation Time vs Frequency in Arak Theater Hall

Arak Music Hall, Plan (left) and Section (right)

● Noise Reduction of Mechanical Equipment of Yasaman Residential Building. 2016


Private Employer

Yasaman residential building is an apartment in Tehran which is designed by Safamanesh and Associates architectural firm. There has been a chiller near the roof garden of the building, for which the construction details of the floor and walls of the place has been designed to reduce the sound level of the roof garden.






● Rasht Music Hall. 2015-2016

Collaborating with Dr. Maulana on Design

Employer: The Ministry of Culture and Islamic Guidance of the Islamic Republic of Iran

This music hall has been designed to optimize the acoustical conditions of constructed structure which include around 800 seats. Noise reduction of ventilation system, arranging the audiences, adding some reflectors in particular places, and shaping the interior ceiling have been the strategies of obtaining the optimum quantity and quality of musicsl sound received by listeners.


General view of Rasht Music Hall

General view of Rasht Music Hall


Contact Info





Email: contact@archacoustic.com



Academia

Linkedin